Komerční jednotky k prodeji

Panorama Braník

735 m² KOMERČNÍCH PLOCH

V přízemí projektu Panorama Braník je navrženo celkem 735 m2 komerčních ploch pro obchod-
ní či kancelářské jednotky. Prostory jsou navrženy tak, aby umožňovaly dělení na více menších
samostatných komerčních jednotek s vlastními vstupy z ulice a vnitrobloku. Výlohy komerčních
jednotek jsou směřovány jak do ulic Údolní a Vavřenova, tak také do klidného vnitrobloku.
Ke komerčním plochám je počítáno s dostatkem skladovacích prostor a také s odpovídající
kapacitou vnitřních parkovacích stání. Komerční jednotky jsou vhodné zejména pro doplnění
občanské vybavenosti, pro obchody a služby denní potřeby, např. pro kavárny, bistra, menší
specializované obchody, showroomy, soukromou zdravotní praxi apod.

Domluvte si s námi nezávaznou schůzku a získejte více informací o možnosti nákupu komerční
jednotky. Připravíme pro Vás individuální obchodní nabídku na míru.

CENÍK
Panorama Braník

KOMERČNÍ PROSTORY SE ZOBRAZENÍM NOSNÝCH PŘÍČEK

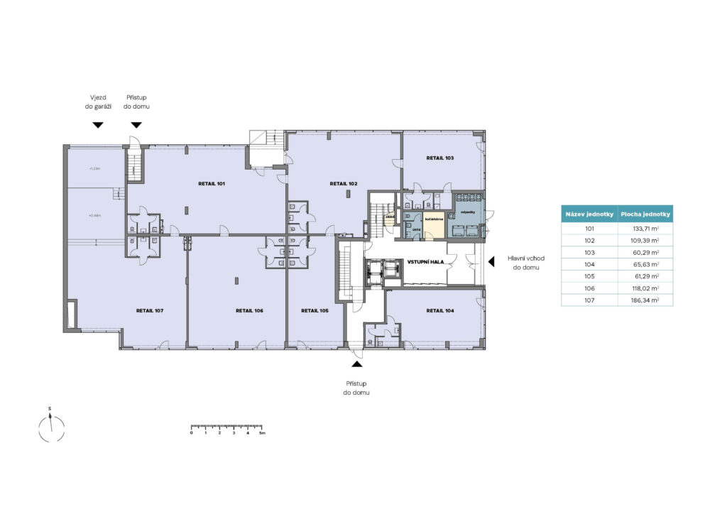
Na půdorysu je vyobrazena celková plocha komerčních prostor (735 m2) vč. nosných konstrukč-
ních příček, tzn. pouze těch, které je třeba zachovat. Finální dispozice a velikosti jednotek si
může klient určit, stejně tak i finální povrchy a vybavení (dodávka ve standardu shell & core).

1. NADZEMNÍ PODLAŽÍ

KOMERČNÍ PROSTORY SE ZOBRAZENÍM MOŽNÉHO ROZDĚLENÍ NA 7 SAMOSTATNÝCH JEDNOTEK

1. NADZEMNÍ PODLAŽÍ

SPLÁTKOVÝ KALENDÁŘ

Parametry výše jednotlivých splátek kupní ceny a jejich splatnosti budou projednány s klienty
individuálně.

 

 

 

 

 

Panorama Braník

Zanechte nám zprávu